821 res







Anura es la oportunidad de invertir en un departamento de lujo, en la mejor zona de temozón norte mérida, rodeado de servicios y lugares de interés en donde todo aquel que invierta, pueda sentirse satisfecho y realizado. anura es un exclusivo complejo de 28 departamentos, cada uno de ellos con balcón y acceso a todas las amenidades, que se distribuyen en nuestras 5 plantas. podrás encontrar 5 modelos de departamentos diferentes, diseñados especialmente para satisfacer las necesidades de nuestros clientes, otorgando la mejor experiencia y estilo de vida. modelo bombina 116.60 m2 construcción total 84.04 m2 construcción 5.06 m2 terrazabalcón 2.50 m2 área de servicio 25.00 m2 parking techado 2 recámaras 2 baños sala y comedor cocina integral con granito 2 estacionamientos techados bodega área de lavado modelo cortical 124.21 138.30 m2 construcción total 83.77 84.09 m2 construcción 9.94 27.03 m2 terrazabalcón 2.50 5.18 m2 área de servicio 25.00 m2 parking techado 2 recámaras 2 baños sala y comedor cocina integral con granito 2 estacionamientos techados bodega área de lavado servicios incluidos: elevador caseta de vigilancia 24 hrs. portón eléctrico balcón en todas las unidades estacionamiento techado ice maker tool box ducto de basura amenidades pool & grill private gym rooftop bar lounge & dining suite open garden amazon delivery reading area apartado de $30,000 (7 días naturales) enganche desde el 10% formas de pago: recurso propio y crédito bancario fecha de entrega diciembre 2025 las imágenes son con propósito de ilustración y pueden variar del producto final. precios y disponibilidad vigentes al 23 abril 2024 (5)







Campus country mayab brida a sus residentes la experiencia única e inigualable del territorio yucatán country, al fusionar en un sólo entorno un núcleo central una zona de comercios, espacios corporativos de oficinas y residencias universitarias a unos cuantos pasos de la mejor universidad del sureste, el colegio privado bilingüe más importante de la región y exclusivas privadas. todo al rededor de un parque ecológico protegido y un ambiente único rodeado de áreas verdes, paisajismo, actividades diarias, todo a una distancia a pie. el complejo ofrece 3 modelos de suites universitarias totalmente equipadas y amuebladas y con todos los servicios dividas en : 105 junior suite 22.4 m2 54 master suit 25.6 m2 8 grand suite 34.38 residencias totales: 167 equipamiento: cama matrinonial mini split cocina equipada pantalla de 40 pulgadas closets escritorio silla baño completo persianas sofá cama amenidades como: casa club cafetería albercas salas de estudio cocina abierta terraza asoleaderos salón de juegos lavandería este inversión representará una de las últimas oportunidades para obtener una parte del galardonado y exclusivo estilo de vida en torno al yucatán country club, la mejor comunidad para vivir en méxico. r.o.i. de 10% condiciones de compra: apartado $15,000 (devolutivo por 7 días naturales) enganche 10.4 % 34 mensualidades 2 anualidades saldo a contra entrega fecha de entrega dic 2027 (5)







La privada residencial albarella está ubicada en la zona premium de cholul (km 3.5 de la carretera mérida motul) a la altura de la desviación que va hacia chicxulub puerto. albarella se encuentra convenientemente localizada en una de las zonas con mayor plusvalía de la ciudad de mérida. modelo "a" 180 m2 de construcción 1 planta arquitectónica sala, comedor y cocina terraza techada 1 recámara, baño y clóset vestidor 1 recámara con baño cuarto de servicio con área de lavado y baño medio baño de visitas piscina garage para 3 autos (2 techados) incluye acceso a la cocina desde el garage. terraza techada. cuarto de servicio con área de lavado y baño completo. piscina. alturas interiores de 3.0 mts. bardas. piedra en fachada o acabado pulido en fachada. aluminio línea de 3” puerta lateral de herrería tipo louver para pasillo de servicio. puertas de madera con cerradura de lujo. meseta de mármol en baños. acabados de pasta tipo yeso en paredes interiores más pintura. acabados 3 capas en exteriores más pintura. pisos de porcelanato. detalles con vigas metálicas en fachadas delanteras y traseras según modelo. biodigestor. cisterna con bomba centrífuga. tinaco de 600 litros. nicho en área de regadera de los baños. muebles de baño onepiece con monomando. tarja doble en cocina. cocina con gabinetes de melamina, colores a escoger. hamaqueros de acero inoxidable (1 par por recámara). jardín frontal. pasillo de servicio. número de casa en acero inoxidable. escalera marinera para azotea. bajantes pluviales ocultos en muro. preparación para sistemas de paneles solares. preparación para equipos de aire acondicionado en: salacomedor, estudio y recámaras. incluye bases de concreto en azotea para fijación de compresores, cableado y ductos para desagüe. preparación para instalación de ventiladores en salacomedor, estudio, cocina, recámaras, cuarto de servicio y closets vestidores). preparación para lavadora y secadora. preparación para tanque de gas estacionario. impermeabilización. fumigación preventiva contra termitas. preparación para boiler. carta de garantías. adicionales con costo ventiladores. paneles solares. equipos de aire acondicionado. canceles de baño. espejos. mosquiteros. clósets de recámaras. sistema de alarma. sistema de riego. hidroneumático. calentador. tanque de gas estacionario. precios vigentes al 5 de mayo 2023 (5)






Preventa de departamentos arvum luxury en la colonia san ramón norte, mérida. cerca de la avenida garcía lavín y la salida del periférico. complejo de 20 departamentos calidad premium de 5 niveles con 5 modelos y un rooftop con piscina infinita. planta baja: 1. 31 cajones de estacionamiento 2. elevador 3. escaleras principales niveles del 1 al 3: diferentes tipos de modelos de departamentos nivel 4: 1. departamentos y rooftop tipos de departamentos: modelo a 80m2 se encuentra dos veces en los niveles 1 al 3 . estancia . cocineta . recamara principal con vestidor, baño completo y cuarto de lavado modelo b "67 m2" c "70m2" d "89m2" . estancia . cocineta . recamara principal con vestidor y baño completo . recamara secundaria con closet, baño completo y cuarto de lavado. modelo e 117m2 se encuentra dos veces en el nivel 4 . estancia . cocineta . recamara principal con vestidor y baño completo . recamara secundaria con closet, baño completo . recamara secundaria con closet . terraza particular y cuarto de lavado. amenidades . cuarto de juegos . gimnasio . piscina . baños y bodega los precios varían según los m2 y la ubicación, desde los $2,750,000 hasta los $3,450,000. precios vigentesl al 13 de abril 2023 fecha de entregsa 2025 (5)







Modelo 78 m2 desde $2,550,000 2 recámara con balcón 2 baño área de lavado recámara con clóset vestidor. cocina con barra de granito y parrilla eléctrica. mueble y cancel fijo de baño barra y tarja en terraza. modelo 69 m2 2 recámara con balcón 2 baño área de lavado recámara con clóset vestidor. cocina con barra de granito y parrilla eléctrica. mueble y cancel fijo de baño amenidades roof garden pet friendly acceso a club deportivo grand real el desarrollo contara con: edificio sostenible certificado entrada con cámaras de seguridad acceso a discapacitados seguridad 24/7 caseta de vigilancia estacionamiento precios y disponibilidad sujetos a cambios sin previo aviso. características balcón terraza accesibilidad para personas con discapacidad cocina equipada las imágenes son con propósito de ilustración y pueden variar del producto final. precios y disponibilidad vigentes al 17 enero 2024 (5)







Departamento nuevo 1 recamara sala/flex cocina comedor closet baño balcon acceso a casa club se aceptan recursos propios y creditos (5)







Emwa (elevating living), es un conjunto de 15 departamentos, en preventa, ubicados en temozón norte, en mérida, yucatán. cercana a todos los servicios como son escuelas, universidades anahuac mayab, universidad marista, universidad del valle de méxico, a centros comerciales como the harbor, city center, city 32, la isla, etc., al hospital el faro, gasolineras y la playa a 20 o 25 minutos aproximadamente. el edificio es de tres niveles, donde habrá 5 departamentos por cada nivel modelo wa 2 recámaras 2 baños cocina salcomedor corrido área de lavandería closets área de terraza o balcón incluye parrilla eléctrica y carpintería en gavetas inferiores y closets canceles fijos en regaderas espacio para lavadora. 1 cajón de estacionamiento. características, precio y medidas, según la ubicación dentro del complejo superficie: total: 97 m2 construidos : 84.5 m2 estacionamiento: 12.5 m 2 incluye: carpintería inferior en cocina y closets y canceles fijos en regaderas. mantenimiento: por determinar, pero se estima que serán aproximadamente $1,300.00 pesos mensuales. fecha de entrega: abril 2026 nota: las imágenes son ilustrativas, sujetas a cambio sin previo aviso por mejoras en el proyecto. formas de pago: recursos propios y crédito bancario 30 % de enganche que pueden pagarse 20% a la firma de promesa de compra venta y 10 % a 20 meses. el 70% restante se paga a la escrituración, a la entrega. las imágenes son con propósito de ilustración y pueden variar del producto final. precios y disponibilidad vigentes al 16 julio 2024 proporcione a su asesor la clave (5)







Propiedad de una sola planta con un terreno de 718 m2 con amplio potencial de crecimiento como casa habitacion o desarrollar departamjentos su área verde es 6 veces mayor a su construcción de 123 m2 lo que permite ese potencial de crecimiento . cercano a escuelas , campos deportivos, area de alta densidad en comercios. (5)







Departamento nuevo 2 recamaras con baño y closet sala cocina comedor acceso a casa club se aceptan recursos propios y creditos (5)





Morera es una privada de lotes 90 lotes residenciales, ubicada al norte de la cuidad con fácil acceso con una área de esparcimiento y además de contar con barda perimetral, caseta barda perimetral ,caseta de vigilancia con acceso controlado 24 horas. amenidades que ofrece la privada: ° casa club techada y climatizada. ° área de lectura. ° cancha de padel. ° grill zone. ° alberca. ° área infantil. sin duda un lugar tranquilo y lindo para vivir en familia. modelo 1 piso. construcción: 229.90m2 terreno:327m2 frente: 10.04m fondo: 32.96m (terreno ligeramente irregular) distribución: ° cochera techada con piso de concreto estampado. ° sala comedor corridos a 4 mts. de altura. ° cocina con meseta de granito e isla. ° medio baño de visitas frente a terraza. ° terraza techada con piso de concreto estampado imitación madera. ° amplio jardín trasero. ° alberca. ° pasillo lateral de servicio. ° pasillo de distribución de recamaras a 4 mts de altura. ° recamara principal a 3 mts de altura con closet vestidor y baño completo. ° 2 recamaras secundarias a 3 mts. de altura con espacio de closet y baño completo. ° área de servicio al frente de la vivienda con conexiones de lavadora y secadora. mismo espacio donde se instalara el hidroneumático y boiler. equipamiento: ° cochera techada con piso de concreto. ° terraza techada con piso de concreto estampado imitación madera. ° alberca: 6x3 ° bomba sumergible. ° pozo de absorción y desagüe. ° lampara led con iluminación de colores. ° gavetas en cocina superiores e inferiores. ° jardín trasero, lateral y frontal con sistema de riego no automatizado. ° arbotantes o lamparas en paredes traseras y baños del interior de la casa. ° hidroneumático ° boiler de gas. ° parrilla de 4 quemadores de gas instalada en isla. ° campana extractora. ° doble tarja. condiciones de compra: apartado $20,000 por 5 días hábiles . enganche: 30% saldo contra entrega y escrituración. recursos propios y crédito bancario. fecha de entrega: junio 2024. los precios publicados no incluyen cantidades generadas por contratación de créditos hipotecarios ni tampoco gastos, derechos e impuestos notariales. las imágenes son con propósito de ilustración y pueden variar del producto final. precios y disponibilidad vigentes al 21 noviembre 2023 (5)





Preventa de casas de dos niveles y dos recamaras en emana, conkal mérida. diseño autentico enfocado en generar convivencia y comunidad con la naturaleza. conkal se encuentra cerca del anillo periférico y plazas comerciales donde encontraras bancos, restaurantes y puntos de interés. casa terraza es una casa de dos habitaciones con dos plantas con una construcción total de 155 m2 y un terreno de 180 m2. pb: estacionamiento techado para dos coches área de servicios terraza bar cocina sala, comedor medio baño de visitas jardín pa: habitación principal con closet vestidor y baño completo habitación secundaria con baño completo amenidades: casa club área de bar piscina parque con juegos infantiles paseo verde la cocina se entrega con carpintería baja, meseta de granito, alacena y parilla eléctrica los baños se entregan con canceles fijos, mueble del lavabo y espejos se aceptan recursos propios, creditos bancarios, infonavit y cofinavit. los precios no incluyen cantidades generadas por contratacion de creditos ni gastos notariales. las imágenes son con propósito de ilustración y pueden variar del producto final. precios y disponibilidad vigentes al 20 de marzo 2024 fecha de entrega dic 2024 (5)







Departamento nuevo cocina comedor área de descanso baño acceso a casa club se aceptan recursos propios y creditos (5)







38 departamentos de 1, 2 y 3 recámaras , distribuidos en dos torres de 3 y 4 niveles, una torre contará con elevador y escaleras de acceso a todos los niveles ubicado en una zona de accesos rápidos y conectividad a plazas comerciales y universidades y hospitales de prestigio en la zona norte de mérida amenidades: terrazasport bar salón social para 25 personas con piscina y baños area de usos multiples pet park caseta de vigilancia con bodega cajones de estacionamiento para visita modelo b 76 a 79 m2m2 2 recámaras 2 baños completos medio baño de visitas sala/comedor cocina área de lavado todos los modelos de planta baja incluyen piscina y jardín 1 er y 2 nivel incluyen balcón equipo: incluye gavetas en cocina superior e inferior parrilla eléctrica de 4 quemadores closets con puertas en recámaras muebles de baño bajo lavabos enganche 20% resto en firma de escritura y entrega fecha de entrega diciembre 2024 disponibilidad y precio(s) vigente(s) al día 22 de enero 2024 (5)







Departamentos en pre venta norte veintiuno sobre avenida prolongación andrés garcía lavín en santa gertrudis copó. n21 es un edificio de 48 departamentos. amenidades: grand lobby de lujo terraza techada bar lounge alberca coworking playground departamentos de 1, 2 y 3 recámaras. departamento 2 recámaras: superficie habitable: 98m2 sala comedor abiertos terraza cocina con barra desayunadora área de servicio dos recámaras dos baños completos. recámara principal con vista a la ciudad y baño dentro de recámara. entrega inmediata precios vigentes al 18 de abril 2024 (5)







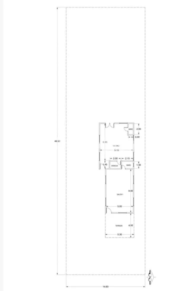
Patio carey es un proyecto de un conjunto de 4 residencias ubicadas en temozón norte, cerca de universidades, plazas comerciales y servicios. la residencia se distribuye de la siguiente manera: primer nivel estacionamiento techado para 2 coches sala/comedor/cocina medio baño cuarto de tv cuarto de lavado área de jardín bodega alberca segundo nivel recámara principal con baño completo y clóset vestidor recámara secundaria con baño completo y clóset recámara tercera con baño completo y clóset cuarto de servicio con acceso independiente opción sin alberca: $100,000 menos precio(s) vigente(s) al día 05 noviembre 2024 entrega: inmediata (5)




Preventa de casas frida, tipo villas., de 2 recamaras. es un concepto que redefine, el concepto de comodidad y calidad de vida., donde tendrás múltiples amenidades y servicios. villa de 2 recamras prototipo de vivienda con espacio para estacionar 2 vehículos, salacomedorcocina, 1 recámara con espacio para clóset, 1 baño completo, 1 recámara principal con espacio para clóset y con su propio baño completo. cuenta con una superficie techada de 100.00 m2. incluye piscina y área apergolada en planta baja. elpreventa de casas frida, tipo villas., de 2 recamaras. es un concepto que redefine, el concepto de comodidad y calidad de vida., donde tendrás múltiples amenidades y servicios. villa de 2 recamras prototipo de vivienda con espacio para estacionar 2 vehículos, salacomedorcocina, 1 recámara con espacio para clóset, 1 baño completo, 1 recámara principal con espacio para clóset y con su propio baño completo. cuenta con una superficie techada de 100.00 m2. incluye piscina y área apergolada en planta baja. el precio publicado es pagando con recurso propio enganche : $181,400.00 21 meses de $28,000.00 meses 6,11 y 16 $287,800 saldo $181,400.00 pago extraordinario + mensualidad fitness park. zen & yoga park. pet park. área de jogging. recepción. lobby estacionamiento. baños para hombres y mujeres. lavandería. bodega de herramientas. bodega de paquetería (tipo amazon). bodega de juegos de mesa. jardín interior. áreas ajardinadas. concierge. bussines center. barrestaurante. pool bar. piscina para adultos. piscina para niños. área de camastros. cancha de pádel: terrazasalón de usos múltiples cámaras de vigilancia. área grill & garden. kids park. consultar precios de adicionales las imágenes son con propósito de ilustración y pueden variar del producto final. precios y disponibilidad vigentes al 7 de febrero del 2025. (5)







Preventa de casas frida, tipo villas. es un concepto que redefine, el concepto de comodidad y calidad de vida., donde tendrás múltiples amenidades y servicios. las villas constan de : villa de 1 recamara. espacio para estacionar 2 autos sala comedor cocina 1 recamara 1 baño completo con puerta para dar servicio también como baño de visitas superficie techada 50.37m2 se incluye cerradura digital en la puerta principal. se incluye sistema alexa. se incluyen apagadores inteligentes. precio desde : $1,643,479 villa de 1 recamara financiamiento directo con el desarrollador enganche : $153,900.00 25 meses de $ 16,727.00 mes 8,14 y 19 $271,008.00 saldo $153,901.00 pago extraordinario + mensualidad consultar precio de adicionales entrega : junio 2026 separado :$10,000.00 respetado por 1 semana enganche ; 10% mensualidades : 24 (80%) a la entrega : 10% precio de 2da etapa las imágenes son con propósito de ilustración y pueden variar del producto final. precios y disponibilidad vigentes al 22 agosto 2024 proporcione a su asesor la clave rcv (5)
Preventa de departamentos solara en santa gertrudis copo, conectando a escasos metros del anillo periférico, la plaza city center donde encontramos los bancos más importantes, supermercado walmart y restaurantes para tu confort. solara es un completo de 21 departamentos de 4 niveles, estacionamiento con bar y zonas de reunión y descanso sin olvidar el roof top con asadores. son ideales para inversión de renta en airbnb. los departamentos van desde los 40 m2 y consta de: 1 habitación con closet baño completo cocina salacomedor 1 cajón techado de estacionamiento amenidades roof garden área de asadores comedor bar sala de relajación fecha de entrega diciembre 2025 las imágenes son con propósito de ilustración y pueden variar del producto final. precios y disponibilidad vigentes al 04 agosto 2023 (5)





Preventa de casas de dos niveles y 3 habitaciones en emana, conkal mérida. diseño autentico enfocado en generar convivencia y comunidad con la naturaleza. conkal se encuentra en la zona norte muy cerca del anillo periférico y plazas comerciales donde encontraras bancos, restaurantes y puntos de interés. casa jardín es una casa de 3 habitaciones y dos plantas con una construcción total de 180 m2 con un terreno igual de 180 m2. pb: estacionamiento techado para 2 coches área de servicio patio central cocina sala comedor medio baño de visitas jardín pa: habitación principal con baño completo y closet vestidor 2 habitaciones secundarias con baño completo amenidades: casa club área de bar piscina parque con juegos infantiles paseo verde la cocina se entrega con carpintería baja, meseta de granito, alacena y parrilla eléctrica los baños se entregan con canceles fijos, mueble de lavabo y espejos se aceptan recursos propios, creditos bancarios, infonavit y cofinavit los precios no incluyen cantidades generadas por contratacion de creditos ni por gastos notariales las imágenes son con propósito de ilustración y pueden variar del producto final. precios y disponibilidad vigentes al 20 de marzo 2024 fecha de entrega diciembre 2024 (5)





Preventa de villas en conkal de 1, 2 y 3 habitaciones, con un diseño autentico, enfocado en generar convivencia y comunidad con la naturaleza. conkal esta en una muy buena ubicación ya que se encuentra cerca del anillo periférico y cerca de plazas comerciales. villa jardin construcción total: 115 m2 construcción habitable: 90 m2 estacionamiento: 25 m2 consta de: 2 cajones de estacionamiento techado área de servicios jardín cocina sala comedor habitación principal con closet y baño completo habitación secundaria con baño completo compartido con visitas la cocina se entrega con carpintería baja, meseta de granito, alacena y parrilla eléctrica. los baños se entregan con canceles fijos, mueble de lavabo y espejos se aceptan recursos propios, creditos bancarios, infonavit y cofinavit los precios no incluyen cantidades generadas por contratacion de creditos bancarios ni por gastos notariales. las imágenes son con propósito de ilustración y pueden variar del producto final. precios y disponibilidad vigentes al 11 de enero 2024 fecha entrega dic 2024 (5)





Casa vivero precio de venta: $4,250,000 mxn ubicada en: maeba residencial, conkal, yucatán (5)







Casa en venta ubicada en el barrio de la ermita, a tres cuadras de la iglesia. ideal para remodelarse y hacer un hotel boutique o una propiedad comercial. su ubicación a tan solo 15 minutos del aeropuerto y dentro del centro de mérida, hacen de esta propiedad una oportunidad de inversión. precios y disponibilidad vigentes al 11 de octubre del 2024 (5)





Nové ubicada en dzitya, zona de alto crecimiento al norte de la cuidad de mérida. a 700m de la universidad tec. milenio. a 800m de gran real club deportivo, a 3.1km the harbor y fácil acceso a diferentes puntos. nove brinda la oportunidad de elegir entre dos estilos arquitectónicos. residencias de una planta. cuentan con un diseño que se armonizan con la distribución perfecta que incluye un recibidor muy acogedor, sala y comedor a doble altura con vista a la terraza, cocina amplia con isla desayunador y tres recamaras cada una con closet vestidor y baño completo, y jardín con bodega. especificaciones: una planta 3 recamaras 5 baños alberca. jardín posterior terraza techada. cochera para 3 autos. frente: 11.67m. fondo: 44m. terreno: 493m2 construcción: 353.16m2 formas de pago: ° apartado $ 20,000 por 10 días. ° enganche: 20% ° liquidación a la entrega (6 meses después de la firma de promesa) ° crédito bancario y recurso propio. los precios aquí publicados no incluyen cantidades generadas por contratos de créditos ni tampoco gastos, derechos e impuestos notariales. las imágenes son con propósito de ilustración y pueden variar del producto final. precios y disponibilidad vigentes al 19 febrero 2024 (5)







Modelo bambu, se encuentra ubicada en praderas del mayab, casas de diseño moderno y vanguardista con acabados de primera y amplios terrenos. a tan solo 15 min de plaza altabrisa y 20 minutos de la playa. (5)
Descubre las estadísticas sobre departamentos y casas en venta en Yucatán. En este momento, hay disponibles 821 en esta localidad. Según datos actualizados hasta octubre de 2025, la media de precio de estas propiedades es de $4,323,060, con un costo por metro cuadrado promedio de $27,014. Los precios varían ampliamente, desde $920,000 hasta $55,000,000, con un rango de precio por metro cuadrado que va desde $5,806 hasta $110,000.
Si estás buscando una propiedad en Yucatán, encontrarás que el 45.57% de las opciones son departamentos, mientras que el 53.06% son casas. La vivienda típica en esta zona tiene un espacio de 184 metros cuadrados, 3 recámaras y 2 baños. ¡Explora más sobre las oportunidades de vivienda en departamentos y casas en venta en Yucatán aquí!