3,200,000 MXN
camas3 recámaras
baños
baños
2 bañosestacionamientos
1estacionamiento
1 estacionamientoÁrea
area de 167 metros cuadrados
167m2Descripción
Mostrar más
Departamento en Preventa con Rooftop y Terraza – Col. Guadalupe, Tampico
Disfruta de un estilo de vida único en este amplio departamento de 167 m2, ubicado en la Colonia Guadalupe, una zona residencial tranquila, segura y con excelente conectividad en Tampico. Aprovecha el precio especial de preventa y asegura tu patrimonio en un desarrollo con gran proyección de plusvalía.
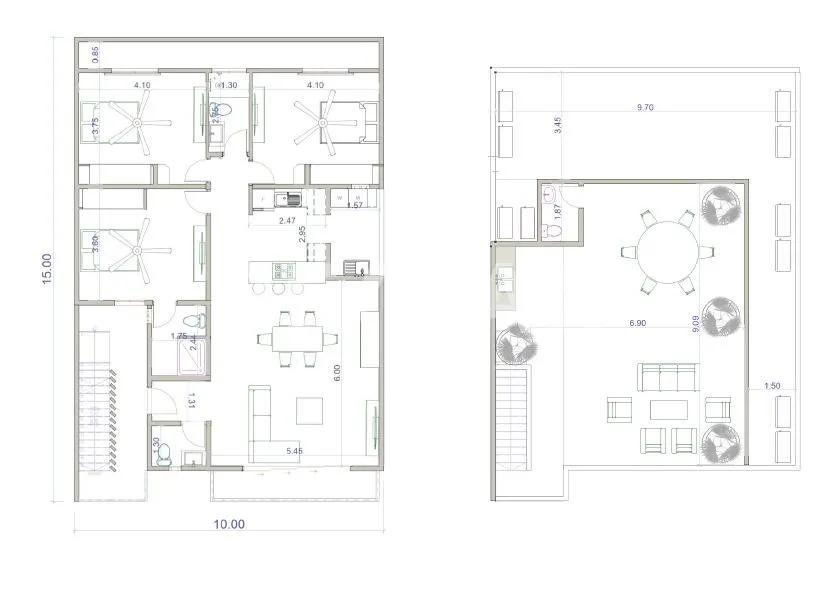
Características del departamento – Planta 2 (167 m2 de construcción):
• 3 recámaras
• 2 ½ baños
• Sala y comedor con espacios amplios e iluminados
• Cocina práctica y funcional
• Área de lavado
• Rooftop privado
• Terraza ideal para convivir al aire libre
• ½ baño adicional en área social
Ventajas de la ubicación:
• Colonia residencial bien establecida y segura
• Comercios locales, nacionales e internacionales a pocos minutos
• Escuelas, centros de salud y servicios básicos cercanos
• Áreas recreativas para actividades al aire libre
• Excelente conexión con avenidas principales y transporte público
Beneficios de invertir aquí:
✓ Precio preferencial de preventa
✓ Amplios espacios interiores y exteriores
✓ Rooftop y terraza para disfrutar reuniones y momentos especiales
✓ Inversión segura con potencial de crecimiento y plusvalía
Un departamento que combina comodidad, amplitud y exclusividad en una de las mejores zonas de Tampico.
(5)
Características
Terraza/Roof Garden
Nivel3
Número de Niveles3
Cuota de Mantenimiento0
Cuarto de Lavado
Ubicación
Guadalajara, Guadalupe, Tampico, Tamaulipas
Estadísticas
Rentabilidad de la zona
6.76%
Rentabilidad de esta propiedad
9.42%
Valor hey hom
$2.5 M - $3.1 M
Precio promedio
$16,925/m²
Área promedio
181m²
Propiedades analizadas
853



