238,500 USD
camas2 recámaras
baños
baño
1 bañoestacionamientos
1estacionamiento
1 estacionamientoÁrea
area de 59 metros cuadrados
59m2Descripción
Mostrar más
Departamento de dos recámaras ubicado en el corazón urbano en Av. Revolución, un nodo de alta afluencia turística con variedad de centros de entretenimiento y restaurantes.
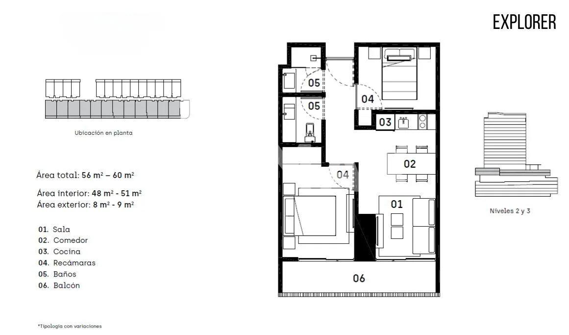
Modelo EXPLORER disponible desde en nivel 5 al 20, dispone de un área total: 59 m², de los cuales 50 m² corresponden área interior y9 m² de terraza. Espacios distribuidos en área de sala – comedor, cocina, 2 recámaras, baño, balcón y 1 cajón de estacionamiento.
Departamento equipado con cocina integral con gabinetes de cocina de melanina, tarja de acero inoxidable, parrilla eléctrica y micro campana marca TEKA, clóset de melamina con herrería, baños equipados con espejo, cancelería de cristal templado y terrazas con puertas corredizas de cristal templado.
Edificio con variedad de amenidades tales como área social, coworking, wellness, bar, cinema, alberca, terraza con amplia vista a la ciudad, planta baja con zona comercial que incluye servicios de mercado, restaurante, escenario al aire libre y demás opciones de entretenimiento.
Precios desde $238,500.00 hasta $240,500.00 USD.
No dejes pasar la oportunidad de invertir en éste proyecto, contáctanos para informes.
(5)
Características
Terraza/Roof Garden
Nivel5
Número de Niveles1
Cuota de Mantenimiento0
Patio
Ubicación
Av. Revolución 1792, Zona Centro, Tijuana, Baja California
Estadísticas
Rentabilidad de la zona
6.97%
Rentabilidad de esta propiedad
5.88%
Valor hey hom
$3.4 M - $4.1 M
Precio promedio
$63,678/m²
Área promedio
64m²
Propiedades analizadas
97




